發布時間:2022-05-24 14:23:58 人氣:2580
恒溫恒濕箱原理是模仿自然環境中的高溫、低溫、潮濕、干燥的氣候條件,在箱體中通過各控制系統相互作用實現,其工作原諒你產生方式主要通過空氣室內,空間加熱、制冷、加濕、除濕,通過系統額組件之間協同做用,完成加熱、制冷、加濕、干燥的操作,進而實現使用恒溫過程中的恒溫恒濕環境,總結,恒溫恒濕箱有調溫和增濕兩部分構成,各部分工作原理詳細說明如下:
1、恒溫恒濕箱的溫度調節原理
恒溫恒濕箱的溫度調節通過箱體內置溫度傳感器,采集數據,經溫度控制器調節,接通空氣加熱單元來實現增加溫度或者調節制冷電磁閥來降低箱體內溫度,以達到控制所需要的溫度。
2、恒溫恒濕箱的濕度調節原理
恒溫恒濕箱的濕度調節是通過體內置濕度傳感器,采集數據,經濕度控制器調節,接通水槽加熱元件,通過蒸發水槽內的水來實現增加箱體內的濕度或者調節制冷電磁閥來實現去濕作用,以達到控制所需要的濕度。
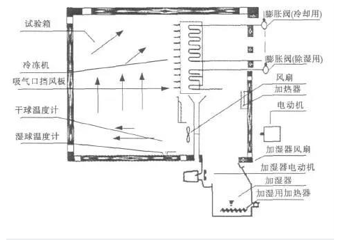
3、恒溫恒濕箱內部結構圖
     
在充分了解恒溫恒濕試驗箱的工作原理之后,用戶在使用設備的過程中,能更加科學的進行操作,讓你的測試過程更安全,測試結果更精準,測試設備長期使用。
    
下一篇:光照培養箱的設置參數及功能說明
相關推薦
猜您喜歡